6001 - 5740 S Kings Hwy.Myrtle Beach, SC 29575

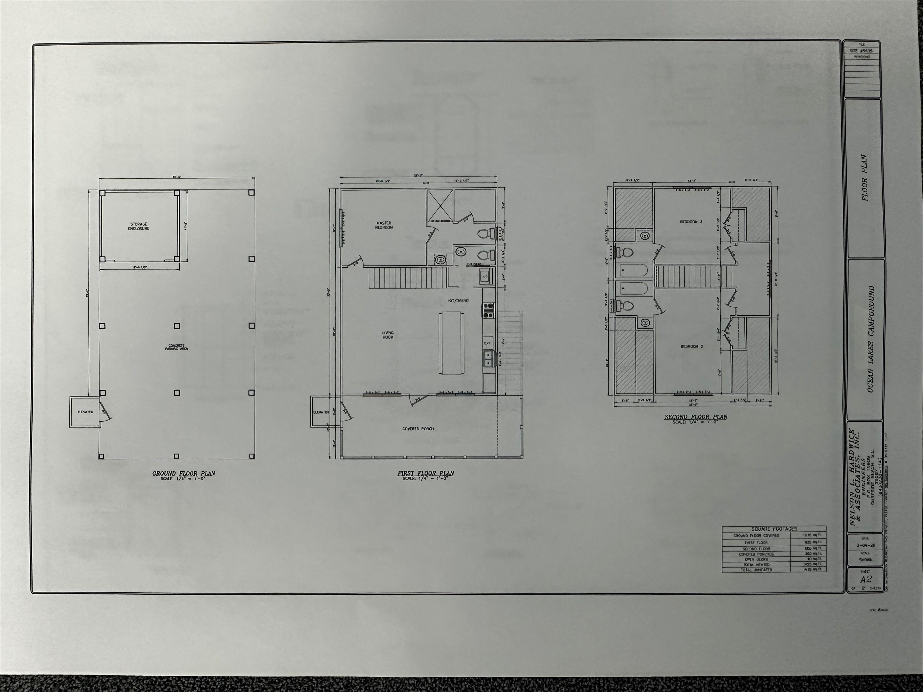
This 3-bedroom 3.5 bath NEW CONSTRUCTION with ELEVATOR will be a total of 1,425 sq ft over 2 floors. 1st floor will have living room, dining area, open concept kitchen with huge island. 1st floor primary bedroom with attached full bath. 1/2 bath is located downstairs and washer/dryer for added convenience. Upstairs has 2 more large bedrooms with attached full bathrooms! Hardie board and batten vinyl siding, custom cabinetry, built in closets, quartz countertops, full quartz backsplash, quartz bathroom vanities, CROWN MOLDING throughout, bullnose finish on drywall corners, spray foam insulated roof deck, black trim windows, trex decking, black aluminum handrails, LVP flooring, custom tile shower in primary bath with glass door, full tile surround in guest bath with soaker tub. LVP flooring will be Smartcore Lanier Hickory waterproof Luxury Plank Flooring. Stamped concrete, privacy louvers, 144 sqft garage, blacked out piers, Hardie board and batten vinyl sided outdoor shower with hot/cold water, trex ground decking, and MANY other upgrades! Completion date is 5/31/26.
| 2 days ago | Listing updated with changes from the MLS® | |
| 2 days ago | Listing first seen on site |
Listing information is provided by Participants of the Coastal Carolina Association of Realtors. IDX information is provided exclusively for personal, non-commercial use, and may not be used for any purpose other than to identify prospective properties consumers may be interested in purchasing. Information is deemed reliable but not guaranteed. Copyright 2026, Coastal Carolinas Multiple Listing Service, Inc
Last checked: 2026-03-21 07:56 PM UTC


Did you know? You can invite friends and family to your search. They can join your search, rate and discuss listings with you.